FELANITX

590,000 €

Beschreibung
Deutsch

Herzlich Willkommen auf einem historischen Anwesen bei Manacor, Mallorca: Finca Son Amaret Nou
Rustikales Grundstück mit renovierungsbedürftigem Haus und genehmigtem Bauprojekt.
Das Haupthaus und die Nebengebäude dieser Immobilie zeichnen sich durch den typischen mallorquinischen Landhausstil der Region aus. Ursprünglich wurden sie für die Landwirtschaft und Weinproduktion genutzt. Die Nebengebäude umfassen Lagerräume, einen Backofen sowie eine alte Getreidemühle, die zur Mehlherstellung diente.

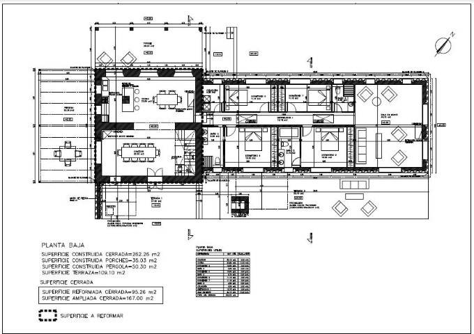
Das Haupthaus bietet eine Wohnfläche von 246 m² und es besteht die Möglichkeit einer Erweiterung um bis zu 3% der Grundstücksfläche, insgesamt 575 m² mit Pool, Garage für zwei Autos und Pergolas (siehe Anlage).

Son Amaret Nou eignet sich hervorragend als idyllische Residenz auf dem Land oder als attraktives Ferienvermietungsobjekt.

Das rustikale Grundstück liegt in einer wunderschönen Weinanbauregion und umfasst eine Fläche von 28.947 m². Die Gegend ist sehr ruhig und bietet einen herrlichen Ausblick auf die Umgebung, einschließlich des Klosterbergs Sant Salvador. Die Grundstückslage ist ideal, etwa gleich weit entfernt von den Orten Felanitx, Villafranca und Manacor.

In der Nachbarschaft befinden sich die Olivenfinca Aubocassa, Finca Es Fangar und die Rafael Nadal Tennisakademie.

Anbei finden Sie das Bauprojekt (Erweiterung – Renovierung – Pool) und Fotos des aktuellen Zustands.

Die Einfahrt zum Grundstück ist bereits fertiggestellt. Auf dem Grundstück befindet sich ein genehmigter Brunnen mit zwei Wasserzisternen. Zudem verfügt die Liegenschaft über einen Anschluss an das öffentliche Stromnetz und einen Festnetztelefonanschluss.


English

Welcome to a historic estate near Manacor, Mallorca: Finca Son Amaret Nou
Rural property with a house to renovate and an approved project.

The main house and the outbuildings of this property feature the typical Mallorcan country house style of the region. Originally, they were used for agriculture and wine production. The outbuildings include storage rooms, an oven, and an old grain mill that was used for flour production.

The main house offers a living area of 246 sqm and there is the possibility of an extension of up to 3% of the land area, totaling 575 sqm with a pool, garage for two cars, and pergolas (see attachment).

Son Amaret Nou is highly recommended as an idyllic country residence or as an attractive holiday rental property.

The rustic property is located in a beautiful wine-growing region and covers an area of 28,947 sqm.
The area is very peaceful and offers a wonderful view of the surroundings, including the monastery mountain Sant Salvador. The property s location is ideal, approximately equidistant from the towns of Felanitx, Villafranca, and Manacor.

Nearby neighbors include the olive estate Aubocassa, Finca Es Fangar, and the Rafael Nadal Tennis Academy.

Attached you will find the construction project and photos of the current condition.

The entrance to the property is already completed. The property has an approved well with two water cisterns. Additionally, it has a connection to the public electricity grid and a landline telephone connection.


Español

Bienvenidos a una finca histórica cerca de Manacor, Mallorca: Finca Son Amaret Nou
Finca rústica con casa a reformar, con proyecto aprobado.
La casa principal y los edificios anexos de esta propiedad presentan el estilo típico de las casas rurales mallorquinas de la región. Originalmente, se utilizaban para la agricultura y la producción de vino. Los edificios anexos incluyen almacenes, un horno y un antiguo molino de grano que se utilizaba para la producción de harina.

La casa principal ofrece una superficie habitable de 246 m² y existe la posibilidad de una ampliación de hasta el 3% de la superficie del terreno, totalizando 575 m² con piscina, garaje para dos coches y pérgolas (ver adjunto).

Son Amaret Nou es muy recomendable como una idílica residencia en el campo o como una atractiva propiedad de alquiler vacacional.

La finca rústica está ubicada en una hermosa región vinícola y cubre una superficie de 28,947 m². La zona es muy tranquila y ofrece una maravillosa vista de los alrededores, incluido el monte del monasterio Sant Salvador. La ubicación de la propiedad es ideal, aproximadamente equidistante de los pueblos de Felanitx, Villafranca y Manacor.

Los vecinos cercanos incluyen la finca de olivos Aubocassa, Finca Es Fangar y la Academia de Tenis Rafael Nadal.

Adjunto encontrará el proyecto de construcción (ampliación – renovación – piscina) y fotos del estado actual.

La entrada a la propiedad ya está terminada. La propiedad tiene un pozo aprobado con dos cisternas de agua. Además, dispone de conexión a la red eléctrica pública y conexión de teléfono fijo.

Immobilien-ID: 2767
  • Schlafzimmer: 0
  • Bäder: 0
  • Preis: 590,000 €